Flexible temperature-controlled spaces available in a range of sizes and configurations
Modular Walk In Cold Room Hire
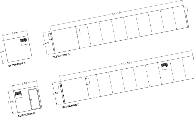
Accessorise Your Modular Walk-In Cold Room
Enhance and tailor your modular cold room with our range of accessories, designed to support efficient access, organisation, and operation. From ramps and racking to chill strips and pallet doors, each item is available to add practical value to your setup.
Not sure what you need?
Our expert rental team is just a call away.
Contact our expert rental team today for a free quote.
Sectors We Serve

Refrigeration rental solutions keeping stores stocked during peak trading, remodels, promotional campaign cycles and emergency breakdowns.

Flexible Cold Room Rental, On Your Terms.
Didn’t find what you’re looking for? Let us know what you need.
We understanding that choosing the right cold room can feel complex, but our dedicated team of experts are here to make it easy. Talk to us today to find the most suitable solution for your project, space, temperature needs, and timeline.












































